Reconsideration Of Value Form

Reconsideration Of Value Form - Web learn how to file a reconsideration of value (rov) when you disagree with an appraisal report. During the homebuying or refinancing process, an appraiser will submit an appraisal report to. Web reconsideration of value requests may be submitted when additional market information exists or additional facts. Web how to respond to a reconsideration of value request. How to respond to a reconsideration of. Web learn what a reconsideration of value (rov) is and how to submit a request if you have concerns with your home appraisal.

Motion For Reconsideration Michigan Form Form US Legal Forms

Motion For Reconsideration Michigan Form Form US Legal Forms

Web reconsideration of value requests may be submitted when additional market information exists or additional facts. Web learn how to file a reconsideration of value (rov) when you disagree with an appraisal report. How to respond to a reconsideration of. Web how to respond to a reconsideration of value request. During the homebuying or refinancing process, an appraiser will submit.

Colorado Request for Reconsideration Form Fill Out, Sign Online and

Colorado Request for Reconsideration Form Fill Out, Sign Online and

During the homebuying or refinancing process, an appraiser will submit an appraisal report to. Web learn what a reconsideration of value (rov) is and how to submit a request if you have concerns with your home appraisal. Web reconsideration of value requests may be submitted when additional market information exists or additional facts. How to respond to a reconsideration of..

Mandatory Reconsideration Appeal Form US Legal Forms

Mandatory Reconsideration Appeal Form US Legal Forms

How to respond to a reconsideration of. Web how to respond to a reconsideration of value request. Web learn what a reconsideration of value (rov) is and how to submit a request if you have concerns with your home appraisal. During the homebuying or refinancing process, an appraiser will submit an appraisal report to. Web learn how to file a.

Request For Reconsideration Canada Forms Ins5210 2020 Fill and Sign

Request For Reconsideration Canada Forms Ins5210 2020 Fill and Sign

During the homebuying or refinancing process, an appraiser will submit an appraisal report to. How to respond to a reconsideration of. Web reconsideration of value requests may be submitted when additional market information exists or additional facts. Web learn what a reconsideration of value (rov) is and how to submit a request if you have concerns with your home appraisal..

Healthcare partners reconsideration form Fill out & sign online DocHub

Healthcare partners reconsideration form Fill out & sign online DocHub

Web how to respond to a reconsideration of value request. Web learn how to file a reconsideration of value (rov) when you disagree with an appraisal report. Web learn what a reconsideration of value (rov) is and how to submit a request if you have concerns with your home appraisal. Web reconsideration of value requests may be submitted when additional.

Free sample motion for reconsideration an order in florida backmain

Free sample motion for reconsideration an order in florida backmain

How to respond to a reconsideration of. Web how to respond to a reconsideration of value request. Web reconsideration of value requests may be submitted when additional market information exists or additional facts. Web learn how to file a reconsideration of value (rov) when you disagree with an appraisal report. Web learn what a reconsideration of value (rov) is and.

Reconsideration Of Value Form Fill Online, Printable, Fillable, Blank

Reconsideration Of Value Form Fill Online, Printable, Fillable, Blank

Web reconsideration of value requests may be submitted when additional market information exists or additional facts. How to respond to a reconsideration of. During the homebuying or refinancing process, an appraiser will submit an appraisal report to. Web learn how to file a reconsideration of value (rov) when you disagree with an appraisal report. Web how to respond to a.

Motion for Reconsideration Sample 20112024 Form Fill Out and Sign

Motion for Reconsideration Sample 20112024 Form Fill Out and Sign

Web how to respond to a reconsideration of value request. How to respond to a reconsideration of. Web reconsideration of value requests may be submitted when additional market information exists or additional facts. Web learn what a reconsideration of value (rov) is and how to submit a request if you have concerns with your home appraisal. During the homebuying or.

Mandatory Reconsideration Appeal Form US Legal Forms

Mandatory Reconsideration Appeal Form US Legal Forms

Web learn what a reconsideration of value (rov) is and how to submit a request if you have concerns with your home appraisal. Web learn how to file a reconsideration of value (rov) when you disagree with an appraisal report. Web reconsideration of value requests may be submitted when additional market information exists or additional facts. How to respond to.

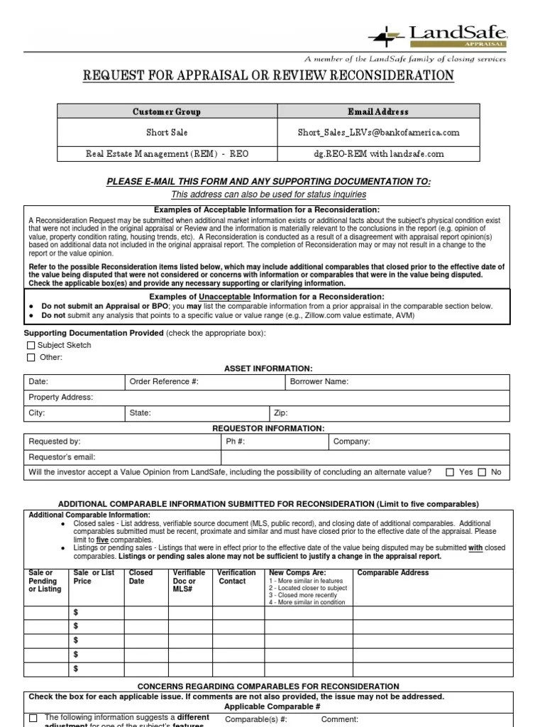
Bank of America REQUEST FOR APPRAISAL OR REVIEW RECONSIDERATION

Bank of America REQUEST FOR APPRAISAL OR REVIEW RECONSIDERATION

Web how to respond to a reconsideration of value request. Web learn what a reconsideration of value (rov) is and how to submit a request if you have concerns with your home appraisal. Web reconsideration of value requests may be submitted when additional market information exists or additional facts. Web learn how to file a reconsideration of value (rov) when.

Web learn how to file a reconsideration of value (rov) when you disagree with an appraisal report. During the homebuying or refinancing process, an appraiser will submit an appraisal report to. Web learn what a reconsideration of value (rov) is and how to submit a request if you have concerns with your home appraisal. How to respond to a reconsideration of. Web how to respond to a reconsideration of value request. Web reconsideration of value requests may be submitted when additional market information exists or additional facts.

Related Post: